Ya casi no son, no quedan. Su tiempo definitivamente ya pasó, y sólo algunos muy pocos ejemplares están a salvo, de momento, en escondidos rincones por nuestra geografía o en colecciones particulares o en un par de museos… Para que no se olvide como eran y los diferentes modelos que existieron, aprovechando el afortunado encuentro de una vieja norma de la CTNE vamos a intentar aquí enumerarlas.
Se trata de un Método de Instalación, el 480.001 en su 3ª edición de junio de 1971 con el título «Cabinas Telefónicas de Intemperie para Teléfono Público» editado por la Sección de Equipos de Abonado del Departamento de Ingeniería de Planes y Normas de la CTNE, preparada por Antonio Frías Carrillo, con el visto bueno de Isidoro Madrid Roda, entonces el Jefe de la Sección y aprobada por Jose Luis Arnal, entonces director del departamento.
En el documento, disponible al completo en este enlace, se detallan las condiciones de instalación de las Cabinas Telefónicas de Intemperie, también denominadas años después, «modelo A» (cuando aparecieron las semicabinas, también de intemperie), en lo que se refiere al sistema constructivo de su colocación en el espacio urbano así como de la acometidas de los conductos telefónicos y de alumbrado. No obstante, además de esta interesante información, que nos muestra la calidad normativa de aquella época, el documento se ilustra con figuras del alzado de los diversos modelos de cabinas en uso en aquella fecha que reproducimos aquí.
Las primeras cabinas de este modelo A se instalaron en Madrid y Barcelona en los últimos meses de 1962, expandiéndose en los siguientes años por toda la geografía. Como curiosidad y como atestiguan las imágenes, en aquéllas primeras el rótulo era «TELEFONOS» y se equipaban con un ejemplar en papel de la guía telefónica local.
Sin duda estas primeras cabinas serían del modelo denominado «Aries». Este, y otros tres más son los que hemos encontrado y se describen brevemente a continuación.
Modelo «ARIES»
Como decimos, se trata de las más antiguas, instalándose desde 1962. Fabricadas por la empresa «Construcciones Metálicas Aries S.A.» que le dio el nombre, según deducimos de la lectura del citado método, y ya en 1971 no se fabricaban. Sus dimensiones y características se muestran en las figuras que se reproducen a continuación.
Este modelo estaba fabricado a base de chapa plegada de aleación de aluminio protegido por pintura.



Pocas imágenes nos quedan de estas primeras cabinas. Algunas obtenidas de viejos reportajes del NoDo y otras gracias a la reproducción de los maquetistas (de lo que hablamos en estas entradas).







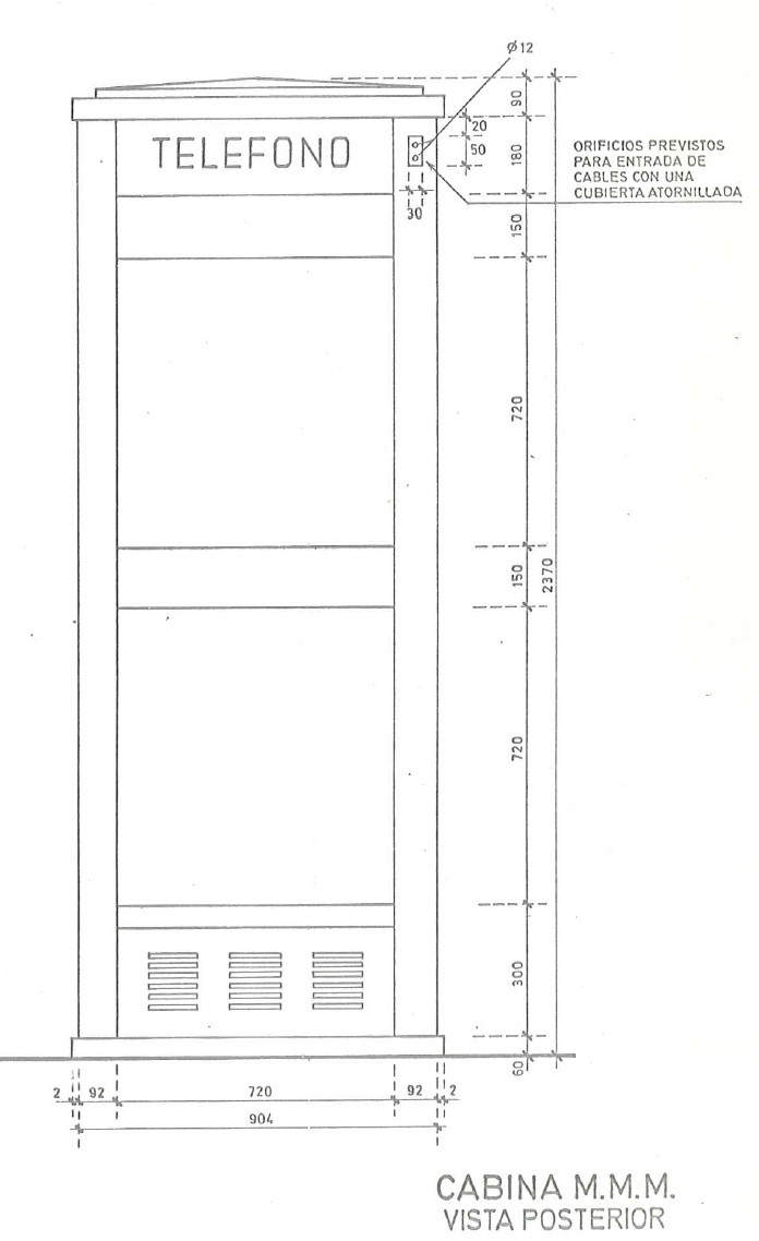
Modelo «M.M.M.»
Exteriormente similares al modelo anterior pero fabricadas a base de perfiles de aluminio extruido protegido por anodizado, por «Manufacturas Metálicas Madrileñas S.A.» dándole el nombre por sus siglas (M.M.M.).
Se trata de otro modelo de puerta de una sola hoja de muy parecidas características e iguales dimensiones. Como elemento diferenciador tenemos que fijarnos en el plegado del panel de cubierta que facilita la evacuación del agua en caso de lluvia.
Sobre este modelo base se aplicaron pequeñas variaciones y mejoras como el número de rejillas de ventilación, que se pueden encontrar en las fotografías.



Algunas imágenes se muestran a continuación.




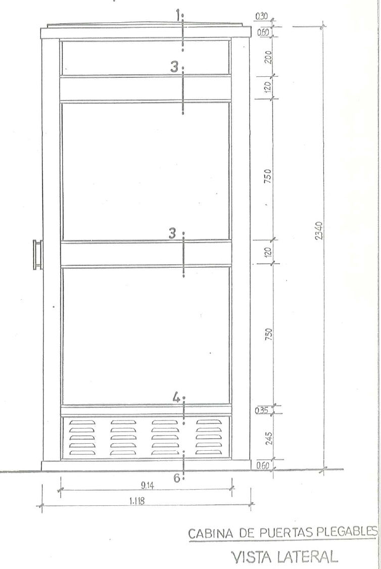
Modelo de Puertas plegables
Los dos anteriores modelos anteriores, con puerta de una sola hoja, fueron sustituidos por los de puertas plegables. También en aluminio extruido anodizado. Con seguridad el vicio por uso de las bisagras provocó problemas de descuelgue y mal encaje de la puerta en el marco. En 1971 ya sólo se fabricaba este primer modelo de puertas plegables por dos empresas «Industria Navarra del Aluminio S.A.» (I.N.A.S.A.) y «Manufacturas Metalúrgicas del Mediterráneo S.A.»



Muy pocos ejemplos de este modelo deben «sobrevivir». Sólo hemos encontrado dos afortunados casos únicos. Uno en la casa-museo de Dalí. Se trata de la Casa-Museo Dalí de Port Lligat, Cadaqués (Gerona) en la que el genio caprichoso del artista le hizo adquirir una de estas cabinas para su jardín.
Y la otra, es la cabina felizmente conservada por acuerdo entre Telefónica y el Ayuntamiento en Becerril de la Sierra en Madrid, al que dedicamos esta entrada especifica. Replicamos aquí algunas fotografías.




Modelo «Garza»
Posteriormente, ya en los 80 … los modelos más modernos con láminas de vidrio laterales de una sola pieza (sin travesaño intermedio de aluminio) y fabricadas por la empresa Garza-Diviloc S.A., las más abundantes del tipo «Garza» … que las podemos encontrar con dos tipos de puertas uno con dos hojas plegables (asimétricas) y otra de hojas iguales de vaivén. No disponemos de figuras de este modelo, pero si de fotografías.





Aún en esta fecha, y en tanto no concluya el proceso de desmontaje de estas viejas cabinas, podemos encontrárnoslas, sobre todo en el medio rural. La mayoría de ellas despojada de su puerta, como si fueran «garitas de guardia», que fue desmontada hace años para reducir los costes de mantenimiento que suponía su reparación ante las averías frecuentes. La mayoría son del Modelo Garza, pero también podemos encontrar alguna otra del tipo M.M.M.
Todo lo aquí presentado se ha deducido de los escasos diferentes documentos encontrados y dista mucho de ser definitivo e incluso de estar libre de error. La historia de «nuestra cabina» está por escribir y por tanto, cualquier aportación de nuestros lectores es deseable y bienvenida.
Notas:
Algunos datos sobre las empresas fabricantes de cabinas:
- Construcciones Metálicas Aries S.A. en Madrid. Creada en los años 50 o primeros 60. Fue adquirida por RUMASA y cerró tras la expropiación de esta última en 1983.
- Manufacturas Metálicas Madrileñas S.A. en Villaverde (Madrid). Grupo industrial consolidado en los años 50. La alianza entre un grupo industrial español (Manufacturas Metálicas Madrileñas SA) con la firma Aluminium Limited of Canada creó Alcan Aluminio Ibérico SA., construyendo «la ciudad del aluminio» en Alicante.
- Manufacturas Metálicas del Mediterraneo S.A. de Alicante. Operativa desde los años 60, estaba situada a lado de las instalaciones de la empresa «Aluminio Ibérico«. Cerró en 1983.
- Industria Navarra del Aluminio S.A. (I.N.A.S.A.). Empresa navarra de transformación del aluminio, creada en 1956, radicada en Irurzun y que fabrica perfiles, cables, productos planos y papel del aluminio para uso doméstico y profesional. Más aquí. Cerró en 2012.
- Garza-Diviloc S.A. se constituyó en 1974 en Madrid desapareciendo en los primeros años de este siglo XXI. Se especializó en todo tipo de mobiliario urbano de aluminio como soporte publicitario cabinas, marquesinas, etc.
Todo lo que hemos escrito sobre cabinas hasta el momento:
- Sobre cabinas y locutorios…
- Los Teléfonos de Pago Previo
- Primeras cabinas telefónicas en Bilbao y Vitoria
- La cabina del Pozo del Tío Raimundo
- Descubriendo el valor de las viejas cabinas telefónicas…por el mundo
- 7581-A es un nombre de cabina
- 4265-A es otra cabina superviviente en Becerril de la Sierra (Madrid)
- Las cabinas. José María Romeo en Onda Madrid
- La cabina, 2022 (El síndrome periodístico de la cabina y otras consideraciones sobre «el fin de la telefonía tradicional»).
- El fraude del magiclick en las cabinas
- Modelismo histórico de las telecomunicaciones (y 3). Una llamada del pasado, Barcelona 1969…
- MUDITEL nuevas piezas, más espacio y mayor presencia en los medios

RSS: Entradas
Hola, ingresé en Telefónica en 1965 como celador del grupo de conservación, hacíamos de todo, montamos las cabinas tipo A desde la base hasta el teléfono. Después pasé averías de abonado y altas, y luego me fui a las cabinas para las averías los últimos 15 años, desde los teléfonos con teletax, los de pesetas y fichas, para terminar en las cabinas, lo del fraude con el chipos fue después de las monedas, se usaba con un agujero finito y un poco de nailon, la introducían por el carril y ya lo tenían calculado, cuando llegaba a las bobinas del circuito impreso hacían la llamada aflojaban el nailon y luego volvían tirar y así sucesivamente…
Hola amigos tengo un teléfono del año 80 quzas mas antiguo de mesa, bueno de los de antes me gustaría saber que puedo poner para poder llamar, recibir puedo pero no llamar, tiene números de ruleta. Me podeis ayudar muchas gracias. Saludos Hacéis un buen trabajo con toda la información, saludos
Enviado desde Correohttps://go.microsoft.com/fwlink/?LinkId=550986 para Windows
Echa un vistazo a este documento mío, explica cómo adaptar casi cualquier teléfono de disco para la marcación por tonos. https://www.geocities.ws/eb3emd/Electronica/Convertidor_pulsos-DTMF.zip
Enhorabuena a los promotores de este artículo, si no existe otra contraindicación, veo y leo que han sido mis amigos de «Lagarto Astuto».
Me ha alegrado inmensamente dicha publicación ya que me trae muy buenos recuerdos.
Fui un emprendedor de las telecomunicaciones durante 44 años más o menos, ahora soy un perseguidor y conservador del teléfono antiguo y todo lo que le rodea.
Este articulo me es familiar y muy bien explicado, ya que yo con la empresa en la que trabajaba en los mundiales de futbol de 1982 tuvimos que instalar unas 48 cabinas en la entrada al pabellón de Exposiciones y Congresos del paseo de la Castellana, frente al estadio Santiago Bernabeu y otras en el Palacio de Cristal de la casa de campo. Menudo recordatorio
Gracias amigos, este saludo para vosotros de vuestro amigo RAM.
Raúl, Gracias a ti por seguirnos asiduamente y por tus palabras de ánimo.
Un abrazo.
Yo soy de la era de la Garza, todavia me acuerdo de lo que me gustaba meterme a «bichear» en la de la plaza del pueblo… una pena que desaparezcan
Pues así es Hachem Patem!
Al menos hubo dos cabinas en el pueblo. Ambas hace años que desaparecieron. De la otra encontré un fotografía hace unos meses…
https://historiatelefonia.files.wordpress.com/2023/03/una-cabina-garza-de-el-boalo.png
Sería bueno encontrar alguna otra foto con la de la plaza a la que te refieres.
Gracias por leernos.
Hola, ¿alguien sabe donde se pueden comprar estas cabinas que se han retirado?